Youth Center Update-27 April 2009

After attending my second meeting to help build a new facility for the Youth Center and Skeeters, I asked Theresa Bowman if it were all right with her and Charlotte if I posted the updates on my blog. Well, here we go!
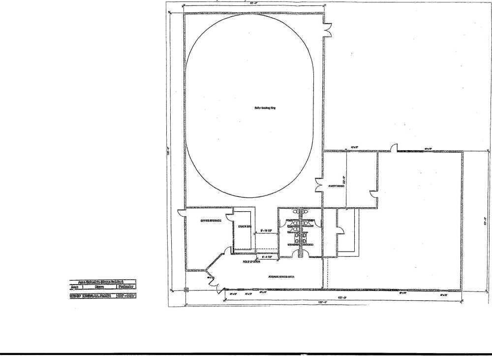
Theresa announced that a down payment was given to the architect for a preliminary design and they are waiting to hear back from the design firm as to when the drawings will be ready for review. This is Exciting!
If you haven't heard anything about this, let me get you up to speed. The Youth Center needs to relocate because the existing building will be put up for sale, by the city, at the end of the summer.
The center wants to build a youth center/roller skating rink at West 5th North by the City Pump house. The building plan is approximately 11,000 square feet on 1.1 acre of land at a cost of $800,000.00
It can be done, if everyone in Mountain Home can donate at least $5.00 per person or more, a beautiful, fun place for all the community to use will be built.
A building fund has been set up at Idaho Independent bank located on American Legion Blvd. The center is looking at grants and searching for investors to help build this new facility. Theresa has already met with some grant writers in Boise and things are looking great! Your donation to this building fund is tax deductible and the center is a NON-PROFIT organization registered with the IRS.
The Center also has a Community Partnership card with Albertson's that can be linked to your preferred card at no cost to you! Please pick up a card at Mulberry Place or the MH Youth Center, use it and "pass it on". The community has purchased and built park toys with this card, not it's time for a community building!
A building plan can be viewed at the Youth Center, or at Mulberry Place, on Airbase Road.
If you are interested in serving on a board of directors, fundraising or just want more information, please call Theresa at 863-2104 or Charlotte at the Youth Center 587-4765.
The kids at the Youth Center are doing some sprucing up and Spring Cleaning in preparation for up coming Crazee Daze! and are asking for your help. If you have any leftover paint that you want to get rid of, interior or exterior, please consider donating it to the Youth Center. It doesn't matter what colors, the more the merrier! Please call Charlotte at the Youth Center for times to drop off your paint or if you can't drop it off, please leave a message with your address and we can arrange to pick it up. Any help with this will be greatly appreciated!
With summer coming up, Theresa told me of another great fundraiser that the kids at the center love to get involved with; they will come and pick the fruit from your fruit trees and sell it at the Farmers Market to make money for the center! If you have a lot of fruit trees but can't keep up with the produce and your neighbors are already tired of the plums or nectarines falling in their yard, please call the center and make arrangements for the kids to help pick them, or if you've already zucchini-ed out your family, vegetables are a great seller too!
We are gearing up for a yummy Chicken and Hotdog Barbecue Fundraiser in July, also! Mark your Calendar for July 25, to be at the El Rancho parking lot from 4-8 pm. There will be live music and good food to be had! Keep an eye out for tickets to be pre-sold for this event.
Last, but not least, check out the new website for the Youth Center and Skeeters at:
www.mhycenterandskeeters.com
The YOUTH meeting will be this Friday, May 1 at 4:00 after school, at the Youth Center.
Theresa is adamant that the kids get as involved as the adults to help get this new facility built, so a youth meeting is always held the Friday following the adult open meetings, (open to the public), every other Tuesday.
The next meetings will be Tuesday, May 12 at 7:00 pm (adult open meeting but kids are welcome too!), and Friday, May 15, at 4:00pm for the Youth meeting.
-
-- Posted by AtomicDog on Fri, May 1, 2009, at 9:48 PM
-
-- Posted by I(heart)myboys on Fri, May 1, 2009, at 10:15 PM
-
-- Posted by kimkovac on Sat, May 2, 2009, at 8:02 AM
-
-- Posted by ides of april on Tue, Jan 26, 2010, at 1:04 PM
Posting a comment requires free registration:
- If you already have an account, follow this link to login
- Otherwise, follow this link to register

